Omschrijving
ENERGIEZUINIGE WONING met 4 tot 5 slaapkamers, 2 livings, 3 badkamers en 4 parkings, voorzien van 14 zonnepanelen met thuisbatterij, doorgedreven isolatie van de bouwschil en een prachtige tuin, gelegen op een residentiële toplocatie waar u alles op wandelafstand heeft.
Solide woning uit 1958, volledig gerenoveerd in 1998, en sindsdien met grote zorg onderhouden en gemoderniseerd met als resultaat een comfortabele en toekomstgerichte woning zonder renovatieplicht.
Deze woning is niet alleen een oase van rust en comfort, maar biedt ook veel flexibiliteit qua indeling. Of u nu op zoek bent naar
+ één zeer grote gezinswoning,
+ een plek om wonen en werken te comineren,
+ of een dubbele woonst voor een kangoeroeconcept, voor elk van deze gevallen is de basis hier uitstekend.
Lees meer:
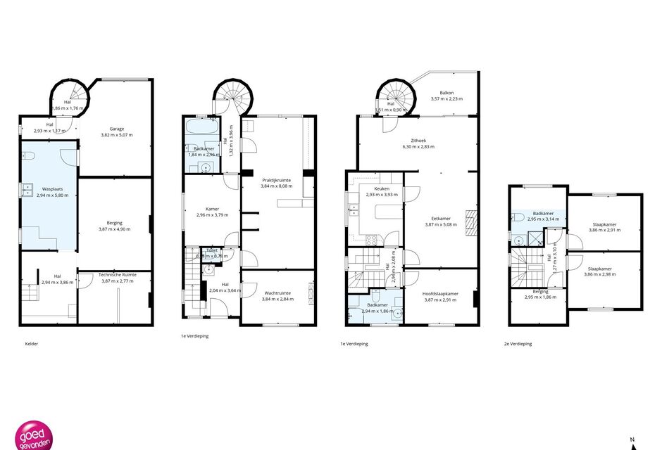
HET WOONGEDEELTE bevindt zich momenteel op de eerste en tweede verdieping, wat zorgt voor privacy en rust.
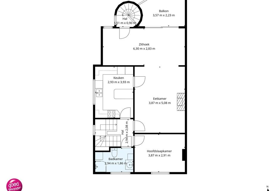
+ Op de eerste verdieping vindt u een sfeervolle en ruime living die via een groot schuifraam rechtstreeks toegang geeft tot het terras waar u geniet van een prachtig zicht op de achtergelegen groene tuin. De verdieping beschikt verder over een volledig uitgeruste eetkeuken verbonden met de living, en een nachthal met een ruime slaapkamer en een keurige badkamer.
+ Via de vaste houten trap bereikt u de tweede verdieping inhoudende een nachthal met twee slaapkamers, een badkamer met toilet en een zolderberging.
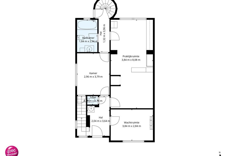
HET GELIJKVLOERS is ook voorzien van een slaapkamer en een badkamer maar is bovendien vooral ingericht als praktijkruimte met wachtzaal en gastentoilet, niettemin biedt het gelijkvloers unieke mogelijkheden:
+ verander niets en combineer wonen en werken.
+ installeer een keuken op het gelijkvloers en je hebt een dubbele woonst met 5 slaapkamers, 3 badkamers, 2 livings, 2 keukens, 2 terrassen.
+ maak er één grote gezinswoning van met luxueuse kamers, extra living, hobbykamers en studieruimtes.
TROEVEN
+ EPC-label B, geen renovatieverplichting
+ Energie (2022): 14 zonnepanelen, thuisbatterij en laadpaal voor elektrische wagen.
+ Verwarming (2020): moderne gascondensatieketel en airco in praktijkruimtes, leefruimte en 2 slaapkamers.
+ Isolatie (2010): extra dak- en spouwmuurisolatie
+ Renovatie 1998: vernieuwing en uitbreiding van dak en muren, plaatsing buitenschrijwerk en verdiepingvloeren in betonwelfsels
+ De kelder werd proactief beveiligd met compartimentering tegen pluviaal risico (regenwater)
TUIN
Mooi aangelegde tuin, volledig omringd door andere tuinen, wat zorgt voor een ongekende rust. U heeft direct zicht op deze groene oase vanaf de terrassen op zowel de beneden- als de eerste verdieping.
PARKING
Daarnaast beschikt de woning over een volledige onderkeldering met inpandige garage, een carport en voldoende extra parkeergelegenheid op eigen terrein.
LIGGING
Gelegen in een bijzonder rustige buurt, op wandelafstand van scholen, winkels en openbaar vervoer. Natuurliefhebbers staan binnen enkele minuten in het midden van het Beukenbergbos of de omliggende velden. Bovendien geniet u van een zeer snelle verbinding naar de belangrijkste invalswegen.
Voor meer info en bezoek BEL 012 744 844 of MAIL info@goed-gevonden.be
Solide woning uit 1958, volledig gerenoveerd in 1998, en sindsdien met grote zorg onderhouden en gemoderniseerd met als resultaat een comfortabele en toekomstgerichte woning zonder renovatieplicht.
Deze woning is niet alleen een oase van rust en comfort, maar biedt ook veel flexibiliteit qua indeling. Of u nu op zoek bent naar
+ één zeer grote gezinswoning,
+ een plek om wonen en werken te comineren,
+ of een dubbele woonst voor een kangoeroeconcept, voor elk van deze gevallen is de basis hier uitstekend.
Lees meer:
HET WOONGEDEELTE bevindt zich momenteel op de eerste en tweede verdieping, wat zorgt voor privacy en rust.
+ Op de eerste verdieping vindt u een sfeervolle en ruime living die via een groot schuifraam rechtstreeks toegang geeft tot het terras waar u geniet van een prachtig zicht op de achtergelegen groene tuin. De verdieping beschikt verder over een volledig uitgeruste eetkeuken verbonden met de living, en een nachthal met een ruime slaapkamer en een keurige badkamer.
+ Via de vaste houten trap bereikt u de tweede verdieping inhoudende een nachthal met twee slaapkamers, een badkamer met toilet en een zolderberging.
HET GELIJKVLOERS is ook voorzien van een slaapkamer en een badkamer maar is bovendien vooral ingericht als praktijkruimte met wachtzaal en gastentoilet, niettemin biedt het gelijkvloers unieke mogelijkheden:
+ verander niets en combineer wonen en werken.
+ installeer een keuken op het gelijkvloers en je hebt een dubbele woonst met 5 slaapkamers, 3 badkamers, 2 livings, 2 keukens, 2 terrassen.
+ maak er één grote gezinswoning van met luxueuse kamers, extra living, hobbykamers en studieruimtes.
TROEVEN
+ EPC-label B, geen renovatieverplichting
+ Energie (2022): 14 zonnepanelen, thuisbatterij en laadpaal voor elektrische wagen.
+ Verwarming (2020): moderne gascondensatieketel en airco in praktijkruimtes, leefruimte en 2 slaapkamers.
+ Isolatie (2010): extra dak- en spouwmuurisolatie
+ Renovatie 1998: vernieuwing en uitbreiding van dak en muren, plaatsing buitenschrijwerk en verdiepingvloeren in betonwelfsels
+ De kelder werd proactief beveiligd met compartimentering tegen pluviaal risico (regenwater)
TUIN
Mooi aangelegde tuin, volledig omringd door andere tuinen, wat zorgt voor een ongekende rust. U heeft direct zicht op deze groene oase vanaf de terrassen op zowel de beneden- als de eerste verdieping.
PARKING
Daarnaast beschikt de woning over een volledige onderkeldering met inpandige garage, een carport en voldoende extra parkeergelegenheid op eigen terrein.
LIGGING
Gelegen in een bijzonder rustige buurt, op wandelafstand van scholen, winkels en openbaar vervoer. Natuurliefhebbers staan binnen enkele minuten in het midden van het Beukenbergbos of de omliggende velden. Bovendien geniet u van een zeer snelle verbinding naar de belangrijkste invalswegen.
Voor meer info en bezoek BEL 012 744 844 of MAIL info@goed-gevonden.be
Details van het pand
-
Financieel
- prijs
- € 389.000
- kadastraal inkomen
- € 1.028
- referentie
- 7622465
- beschikbaarheid
- Vanaf akte
-
algemeen
- bouwjaar
- 1958
- renovatiejaar
- 1998
- bebouwing
- Halfopen
- bestemming gebouw
- Vrij beroep en woning
- verdiepingen
- 2
- tuin
- 306,00 m²
- oriëntatie achtergevel
- Zuidoost
- terras
- 176,00 m²
- garage
- ja
- garages
- 2
- carport
- 1
- parking
- 5
- parkings binnen
- 2
- parkings buiten
- 3
-
afmetingen
- grondoppervlakte
- 620,00 m²
- bewoonbare oppervlakte
- 220,00 m²
-
Ligging
- omgeving/buurt
- Rustig
-
indeling
- hal
- ja
- woonkamer
- 38 m²
- keuken
- 15 m², Volledig geïnstalleerd
- berging
- ja
- bureau
- ja
- slaapkamer 1
- 15 m²
- slaapkamer 2
- 15 m²
- slaapkamer 3
- 12 m²
- slaapkamer 4
- 12 m²
- badkamer 1
- 10 m², type: Alle comfort
- badkamer 2
- 10 m²
- toiletten
- 5
- kelder
- ja
- wijnkelder
- ja
- nachthal
- 6 m²
-
comfort
- kabeltelevisie
- ja
- rolstoeltoegankelijk
- nee
- intercom
- ja
- aansluiting water
- ja
- aansluiting elektriciteit
- ja
- aansluiting gas
- ja
- lift
- nee
-
energie
- epc
- 110 kWh/m²
- epc nummer
- 20251018-0003712818-RES-1
- epc klasse
- B
- elektriciteitskeuring
- ja
- elektriciteits conform
- ja
- beglazing
- Dubbele beglazing
- dubbele beglazing
- ja
- buitenschrijnwerk
- PVC
- verwarmingsketel
- Individueel
- type verwarming
- Gas
- zonnepanelen
- ja
-
stedenbouw
- kadaster sectie
- D
- kadaster nummer
- 226 T4
- overstromingsgevoeliggebied
- niet gelegen in een overstromingsgevoelig gebied
- g-score
- C
- p-score
- C
-
ordening
- stedenbouwkundige info
- ja
- bestemming
- Woongebied
- voorkooprecht
- nee
- bouwvergunning
- ja
- verkavelingsvergunning
- nee
- bodemattest
- ja
- vonnissen
- nee
- dagvaarding
- nee
-
certificaten
- asbestinventarisattest
- Ja, 23 januari 2026, asbestveilig
-
Documenten
- Huis Tongeren-Borgloon - all floors dr kampil j tongeren borgloon with dim - b41cee96.jpg
- Huis Tongeren-Borgloon - 4th floor dr kampil j tongeren borgloon with dim - 2d15bf2c.jpg
- Huis Tongeren-Borgloon - 3rd floor dr kampil j tongeren borgloon with dim - 5a128fba.jpg
- Huis Tongeren-Borgloon - 2nd floor dr kampil j tongeren borgloon with dim - 3ad5065f.jpg
- Huis Tongeren-Borgloon - 1st floor dr kampil j tongeren borgloon with dim - 4dd236c9.jpg
Uw makelaar
